LM/A-18A

Numer mieszkania: LM/A-18A, budynek: 2, piętro: II

Status: Zarezerwowany

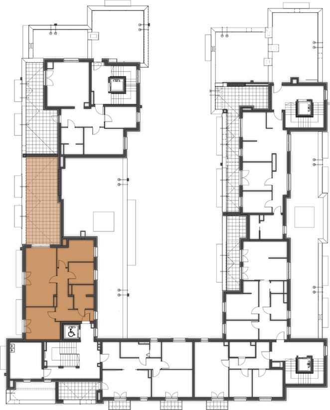
Rzut mieszkania Rzut piętra

Liczba pokoi: 4

Powierzchnia całkowita: 73,51 m²

Przedpokój12,73 m²
Salon z aneksem kuchennym23,37 m²
Pokój 113,75 m²
Pokój 210,23 m²
Pokój 37,23 m²
Łazienka6,20 m²
Taras37,70 m²

Ceny

Cena za m²14 337,99 PLN
Cena całkowita1 053 986,00 PLN
Historia zmiany ceny

1 053 986,00 PLN - aktualna

1 053 986,38 PLN - obowiązująca do 09.04.2026 r.

Inne

Garaże 40 000,00 PLN – 45 000,00 PLN
Komórki lokatorskie 15 000,00 PLN – 25 000,00 PLN

Od dnia przekazania lokalu do dnia zawarcia umowy przenoszącej własność lokalu Nabywca zobowiązany jest do uiszczania na rzecz dewelopera ryczałtowych kosztów utrzymania lokalu oraz nieruchomości wspólnej. Wysokość ryczałtowej opłaty wyliczona będzie według obowiązujących w tym okresie stawek rynkowych oraz na zasadach stosowanych przez usługodawców i dostawców mediów i określona w protokole przekazania lokalu.

    Masz pytania?

    Zostaw do siebie kontakt,
    a my chętnie na nie odpowiemy

    Wyrażam zgodę na przetwarzanie moich danych osobowych (adres e-mail, numer telefonu) w celu informowania mnie o produktach i usługach oferowanych na sprzedaż przez Karmelkowa Sp. z o.o. i Spółki z grupy Blockpol.

    Wyrażam zgodę na informowanie mnie pocztą elektroniczną i telefonicznie o produktach i usługach oferowanych przez Karmelkowa Sp. z o.o. i Spółki z grupy Blockpol.

    Oznajmiam, że zapoznałam/em się z Klauzulą informacyjną Karmelkowa Sp. z o.o., numer KRS 0001147227.

    * Pole wymagane

    Kontakt

    Biuro sprzedaży
    ul. Gwiaździsta 10 lok. 6
    53-413 Wrocław

    Godziny otwarcia
    pon.-pt.
    9:00-16:00

    695 095 695
    sprzedaz@blockpol.pl

    Zadzwoń
    tel. 695 095 695
    Jesteśmy dostępni
    pon.-pt. 9-17, sob. 10-14

    Napisz
    sprzedaz@blockpol.pl
    lub wypełnij
    formularz kontaktowy

    Spotkaj się z nami
    Zadzwoń
    by umówić spotkanie


    DEWELOPER